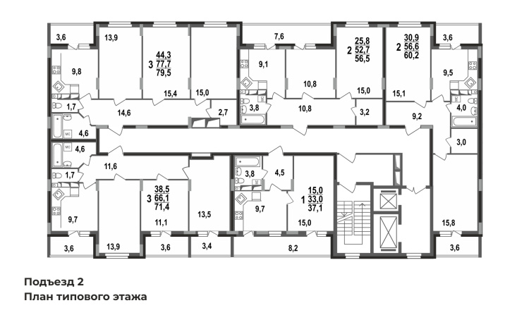
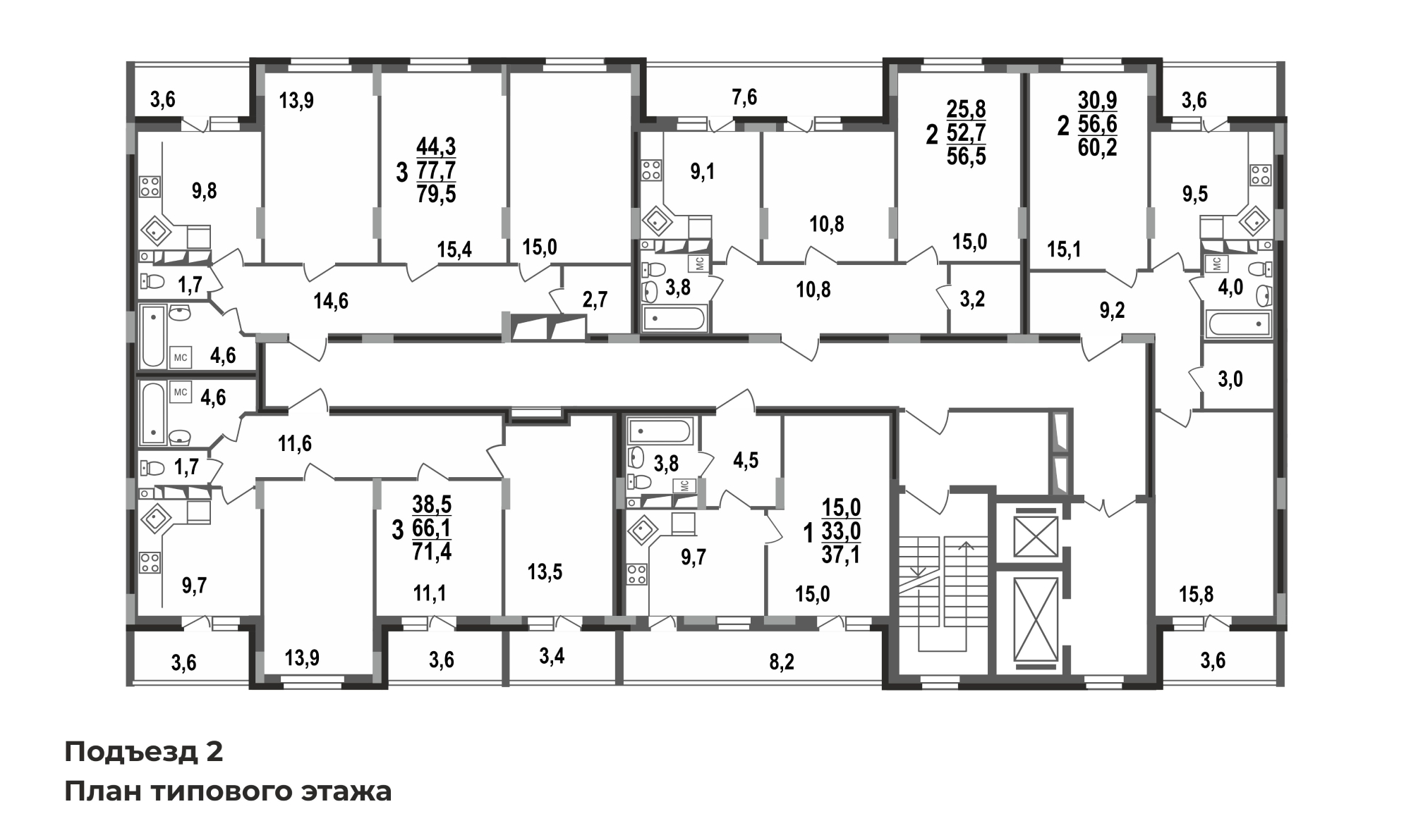
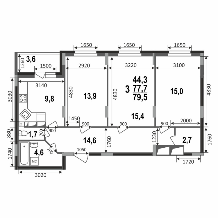
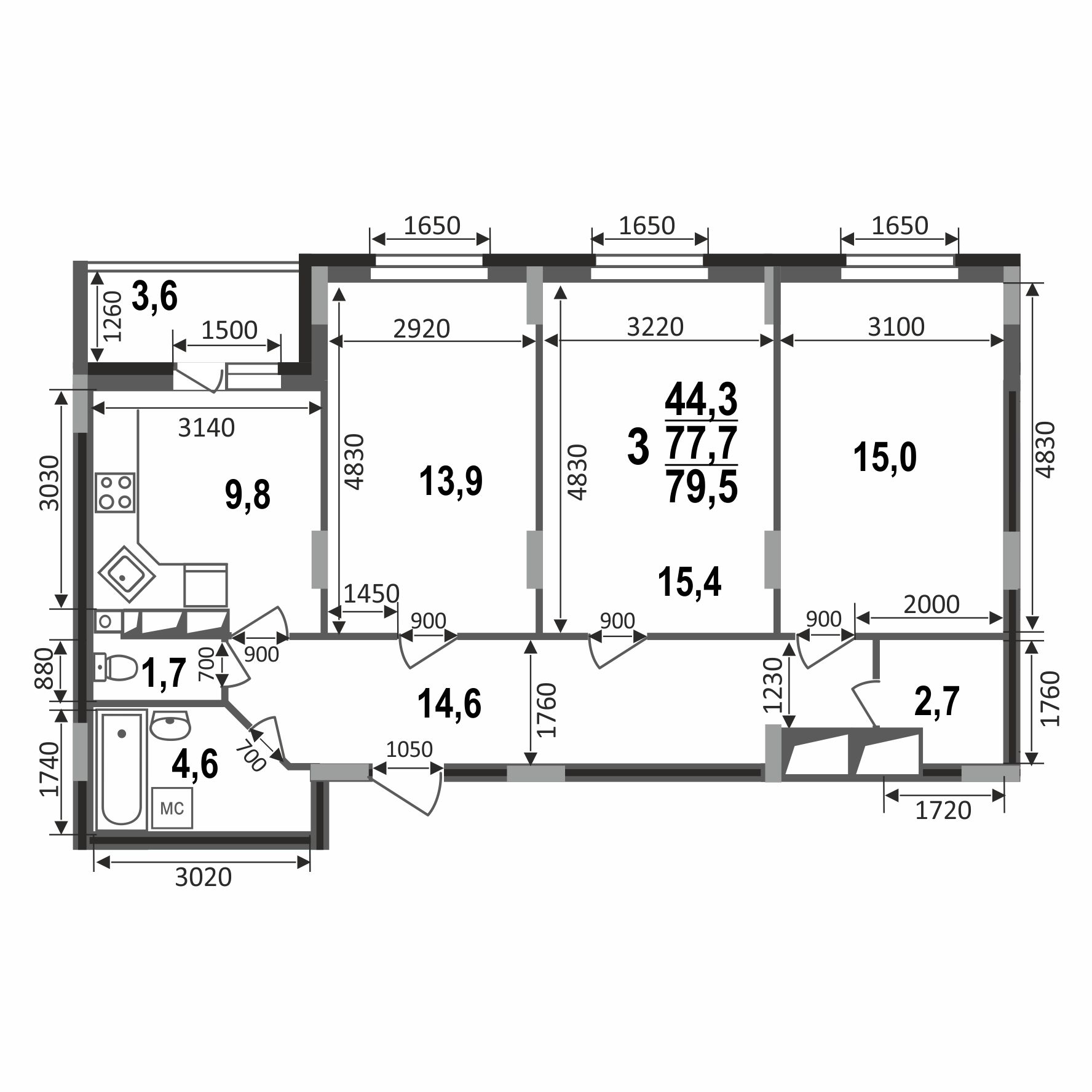
Идеальное пространство для вашей семьи - трёхкомнатная квартира 79,5 кв.м.
Особенности квартиры: три светлые комнаты (14/15/15 кв.м), предоставляющие простор для отдыха и личного пространства для каждого члена семьи; гардеробная, обеспечивающая удобство и порядок в доме; раздельный санузел для максимального комфорта и удобства; функциональная кухня с выходом на лоджию, где можно наслаждаться утренним кофе.
Черновая отделка, гарантия на дом 5 лет.
Новый район, новый дом, новая инфраструктура, развитое транспортное сообщение.
В ЖК Сталинградский бульвар 7 все подъезды являются “семейными секциями”. Весь дом ориентирован на проживание семей с детьми, более 80% квартир являются многокомнатными.
ЖК Сталинградский бульвар 7 — это 17-этажный монолитный дом, строящийся в рамках смарт-квартала VERIZINO lifе:
- современный стильный фасад
- остекленные лоджии во всех квартирах
- большие подъездные холлы на 1 этаже
- сквозные подъезды с выходом как во двор, так и на внешнюю сторону дома
- дизайнерская отделка подъездов
- двор без машин с уютными пешеходными, игровыми и спортивными зонами
- 2 лифта в каждом подъезде
- большое разнообразие планировочных решений
- новый детский сад
- ведется строительство новой школы
- магазины, салоны, детские центры, пункты выдачи интернет-магазинов, остановки
Квартиру можно приобрести несколькими способами:
- рассрочка от застройщика
- ипотека
- обмен старой квартиры на новую по программе трейд-ин
- материнский капитал, жилищные сертификаты
Срок сдачи дома: 4 кв.2026 г.
ООО Специализированный застройщик "СК Континент Сталинградский бульвар". Проектная декларация на сайте наш.дом.рф. Рассрочку предоставляет застройщик.
