Смоленская 3Б
1-комнатная квартира
Сдача
3 кв. 2025
Этаж
3/17
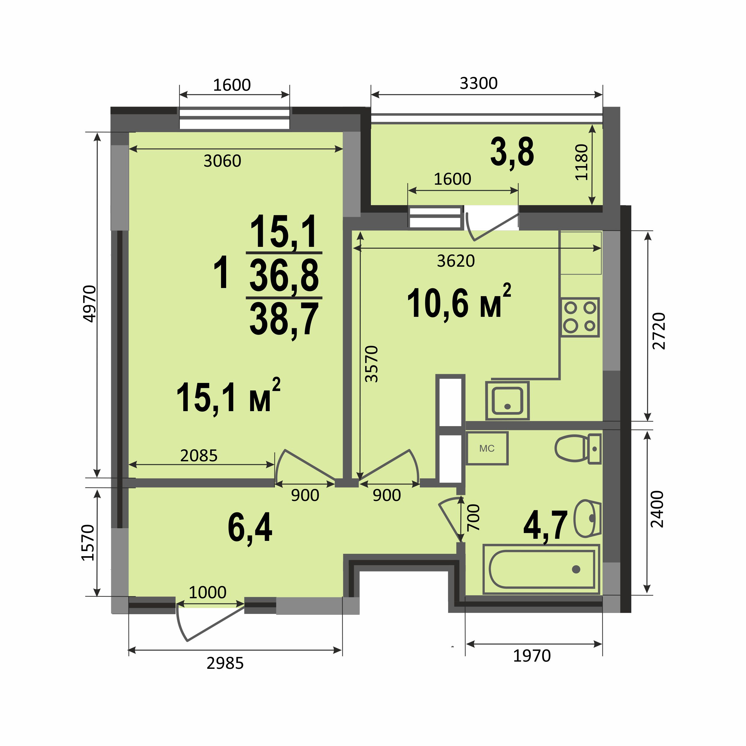
Площадь
38.7
Жилая
15.1
Кухня
10.6
Цена
4 522 095 руб.
116 850 руб./м2
Ипотека*
24 882 руб./мес
Первый взнос: от 20.01%
Однокомнатная квартира (38,7 кв.м) - это квартира с совмещенным санузлом, большой жилой комнатой и просторной прихожей. Окна квартиры выходят на внешнюю сторону дома. На кухне расположен выход на лоджию.
ЖК Смоленская 3Б - это 17-этажный монолитный дом, строящийся в рамках смарт-квартала VERIZINO life:
- современный стильный фасад
- дизайнерская отделка подъездов
- сквозные подъезды с выходом как во двор, так и на внешнюю сторону дома
- в квартирах выполнена черновая отделка
- двор без машин и уютными пешеходными, игровыми и спортивными зонами
- большое спортивное поле с резиновым покрытием для разных видов спорта
- 2 лифта в каждом подъезде
- разнообразие планировочных решений
- новый детский сад в 400 метрах от дома
- рядом заканчивается строительство новой школы
- магазины, салоны, детские центры, пункты выдачи интернет-магазинов, остановки
Дом сдан в 2025 г.
Квартиру можно приобрести несколькими способами:
- Ипотека
- Обмен старой квартиры на новую по программе Трейд Ин
- Материнский капитал, жилищные сертификаты
Квартира сдается с качественной черновой отделкой: штукатурка стен, выравнивающая стяжка пола, установка пластиковых окон с подоконниками и откосами, установка входной двери, без электрической разводки.
ООО Специализированный застройщик "СК Континент Шестой квартал". Проектная декларация на сайте наш.дом.pф. Цена указана с учетом максимальной скидки. Подробный расчет по телефону или в офисе продаж застройщика.
*Расчет носит ознакомительный характер. Ежемесячный платеж указан по программе "Семейная ипотека" от АО "Банк ДОМ.РФ" по следующим параметрам: ставка 5,3%, первый взнос - 20%, срок кредита - 20 лет (учтено личное и имущественное страхование). Подробности уточняйте у консультантов ВГИФ
